1 Bed Apartment For Sale

Market Link, Romford
Shared Ownership £75,000
Market Link, Romford
Market Link, Romford
Market Link, Romford
Market Link, Romford
Market Link, Romford
Market Link, Romford
Market Link, Romford
Market Link, Romford
Market Link, Romford
Market Link, Romford
Market Link, Romford
Market Link, Romford

Description

  • Shared ownership

  • Close to town centre

  • Walking distance to Station

  • Lift access

Shared Ownership (35%) A modern, one-bedroom apartment in the heart of Romford. This very well maintained property is located on the sixth floor with lift access and has a large balcony, open-plan kitchen/reception room, a good-sized bedroom and plenty of storage/utility cupboards throughout. Full double glazing and gas central heating help make the property very energy efficient.
The property is located a moments walk from Romford town centre and close to Romford Train Station (for Elizabeth Line plus London Overground services).

SHARED OWNERSHIP (Advertised price represents 35% share).

Tenure: Leasehold 125 years from 16/11/2009).
Shared Ownership Rent: £355.50 per month (subject to annual review).
Service Charge: £216.51 per month (subject to annual review).
Water Charge: £27.78 per month (subject to annual review).


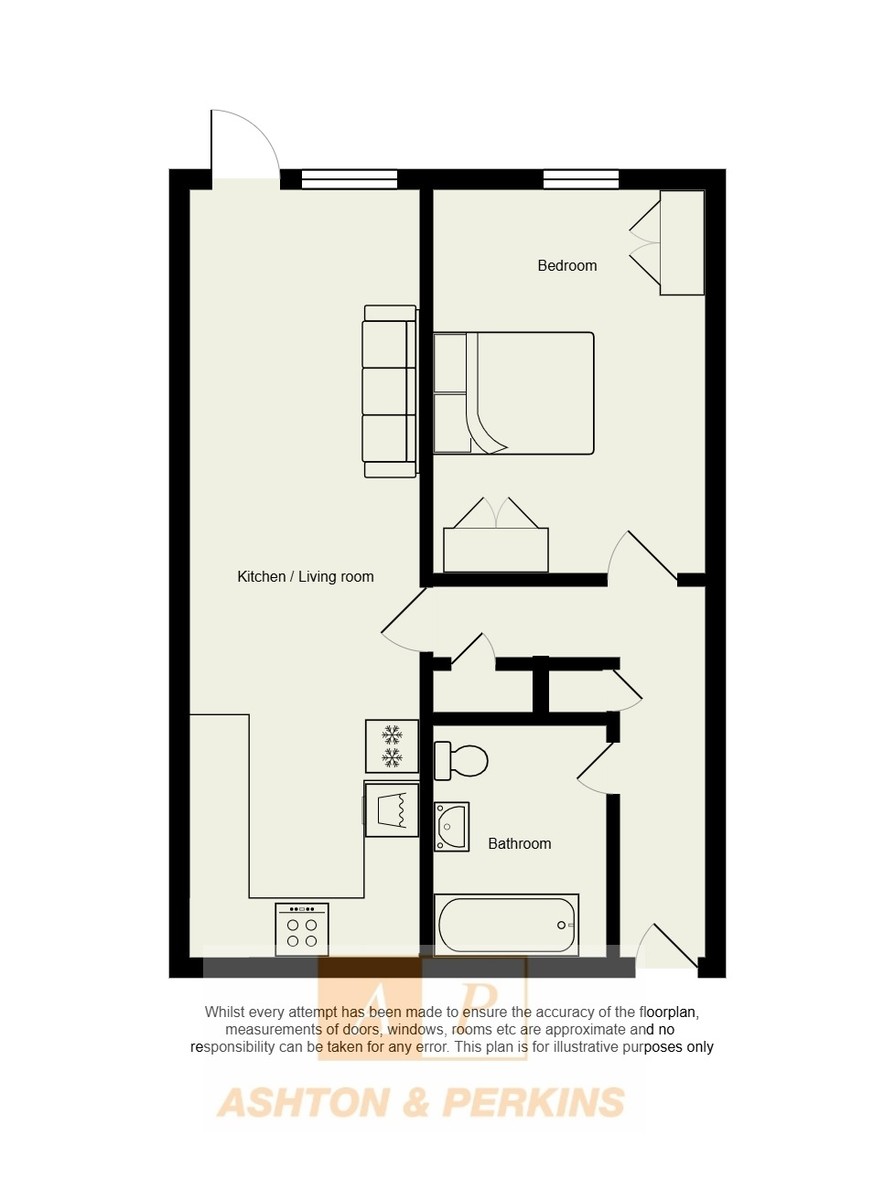
Entrance Hallway
Reception inc kitchen
27' 3" max. x 8' 1" max. (8.31m x 2.46m)

Balcony
16' 1" x 3' 7" (4.90m x 1.09m)

Bedroom
13' 11" x 9' 0" (4.24m x 2.74m)

Bathroom
7' 1" max. x 6' 4" max. (2.16m x 1.93m)

EPC - B
Council tax band - C

Location

Floorplan

To discuss this property call our friendly team

01708 723 700

or Book a viewing
SAVE TO SHORTLIST REMOVE FROM SHORTLIST

Market your property
with Ashton & Perkins

Book a market appraisal for your property today. Our virtual options are still available if you prefer.

PROPERTY SEARCH

Show Sold STC
Show Let Agreed
Get in touch

CHRISTMAS OPENING TIMES

FRIDAY 19TH DECEMBER – OFFICE 9AM – 12MIDDAY
SATURDAY 20TH DECEMBER – NORMAL HOURS
MONDAY 22ND DECEMBER – 9AM – 1PM (PHONE LINES TIL 5PM)
TUESDAY 23RD DECEMBER – 9AM – 1PM (PHONE LINES TIL 5PM)
WEDNESDAY 24TH DECEMBER – CLOSED
THURSDAY 25TH DECEMBER – CLOSED
FRIDAY 26TH DECEMBER – CLOSED
SATURDAY 27TH DECEMBER – CLOSED
MONDAY 29TH DECEMBER – 9AM – 1PM (PHONE LINES TIL 5PM)
TUESDAY 20TH DECEMBER – 9AM – 1PM (PHONE LINES TIL 5PM)
WEDNESDAY 31ST DECEMBER – 9AM – 1PM (PHONE LINES TIL 5PM)
THURSDAY 1ST JANUARY – CLOSED
FRIDAY 2ND JANUARY – NORMAL HOURS

EMAILS / ANSWER PHONE MESSAGES WILL BE MONITORED OUT OF HOURS SO PLEASE LEAVE A MESSAGE OR EMAIL

[email protected]